퍼플펭귄
- 부가가치세세금·세무Q. 부가세 신고시 사업장 공사비로 발행된 세금계산서도 적격증빙에 들어가나요?> 예정인 사업장입니다. > 상태입니다.Q1. > 예정인데요, 공사에 들어간 비용을 내년에 지출증빙 자료로 사용하려면 어떻게 하면 될까요? Q2. 매입자료가 아닌데 공사비를 적격증빙으로 사용할 수 있나요? Q3. 그렇다면 진행 절차와 방법을 알려주시면 고맙겠습니다.
- 종합소득세세금·세무Q. 사업장개시전에 미리 사업자등록 가능한가요?내년 2월 오픈예정으로 사업장(개인사업자 / 일반과세)을 준비중입니다.다음달 착공예정인데요, 준비과정에서 발생되는 세금계산서 발행을 위해서 미리 사업자등록을 해 놓을까합니다.질문1. 사업장 개시전인데, 사업자등록을 미리 해두는게 맞는지 궁금합니다.질문2. 이렇게 준비해둔 자료를 내년에 1월 부가세 신고 및 5월 종합소득세 신고때 어떻게 활용할 수 있는지 궁금합니다.고맙겠습니다.
- 인테리어생활Q. 트롤리/웨건을 찾는데 사진에 있는 제품 정보 아시는 분 계실까요?식당에서 봤고, 또 카페에서도 보았습니다.트롤리/웨건인데요, 튼튼해 보이고 직원 없을때 살짝 운전해봤는데 만족스럽더군요.바퀴도 크고 우레탄? 소리없이 부드럽게 움직이는게 좋았습니다.첨부사진 웨건/트롤리 정보 아시는분 계실까요?
- 인테리어생활Q. 업소용 재떨이 정보 아시는 분 계실까요?카페에갔더니 사진의 재떨이가 보였습니다.상당히 괜찮아보이는데 주문 제작한 것으로 보이지 않습니다.혹시 기성품으로 나와있는 거라면 저도 사고 싶네요.사진 첨부드립니다~
- 음악취미·여가활동Q. 뮤직비디오를 찾는데 도와주실분 계실까요?TJ노래방에서 나오는 뮤직비디오입니다.캡쳐사진 첨부드립니다.노래방에서 알바생으로 보이는 남자가 여자 손님을 맘에 들어하는 것 같은데요.여자손님 방 밖에서 노래를 따라하는 장면입니다.
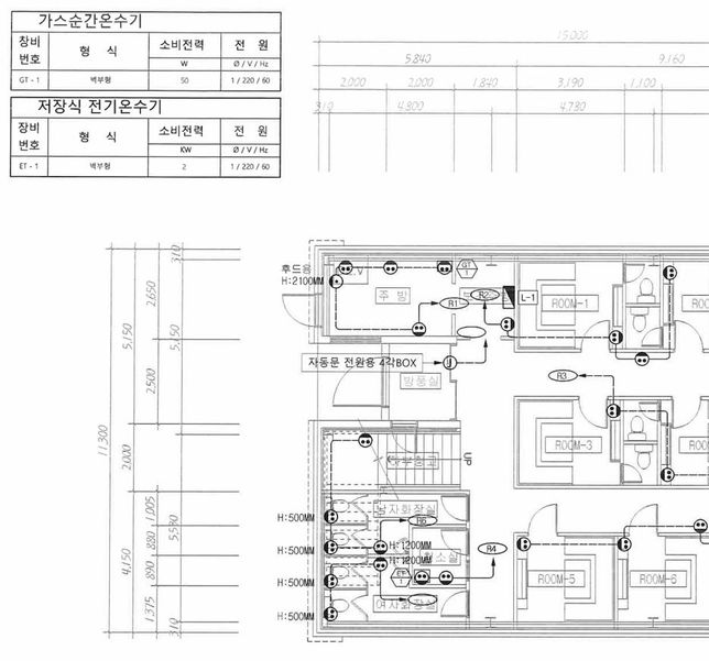
- 토목공학학문Q. 건축설계도면 중 전열설계도인데 어떻게 해석하면 되나요?설계사무실에서 설계도를 받았습니다.전열설비 평면도가 있던데요. 돼지코(구멍2개 가진 원형)같이 생긴 심볼을 전기 콘센트자리인가요?도면 해석 좀 부탁드립니다! 전열설비 평면도 일부를 첨부드립니다.
- 토목공학학문Q. 3d 시안은 보통 계약전, 계약후 언제 제공받는게 관례인가요?상가 인테리어 공사를 게획하고있습니다.견적 2차례 수정해서 견적이 거의 확정되고 있는 단계입니다.계약전에 3D시안을 받아보고 싶은데, 업체에서는 바로 계약을 생각하고있는것 같습니다.계약후 받아보는 시안이 의뢰인 입장에서 시안의 의미가 희석되지 않나요?이와 관련해서 통상 어떤 순서로 진행하는게 일반적인지 궁금합니다.
- 정형외과의료상담Q. 무릎뼈가 돌출한 이유는 무엇일까요?50대 남성입니다.사진에서 처럼 다리를 접으면 다른사람들 보다 무릎뼈가 튀어나와 있습니다.다친적도 없고, 무릎이 불편하거나 하지도 않습니다.나이가 들면서 신체변화가 온 건 아니고, 기억해보면 젊어서도 그랬습니다.다만 그땐 무시했는데 이제 나이가들어가다보니 태생적으로 돌출해있는 무릎뼈로 인해 무릎통증이 발생가능성이 커질 수 있나요?그렇다하면 미리 예방할 수 있는 습관이나 운동은 어떤게 있을지 추천 부탁드립니다.이미지가 포함된 질문이에요.
- 토목공학학문Q. 공사 견적서에서 산출경비, 현장경비는 어떻게 다른가요?공사견적서를 받았는데 산출경비(견적서상 각 공정별 경비 총합) 항목이 있는건 이해했습니다.그런데 별도로 현장경비 명목으로 0.5%가 할당돼있습니다.산출경비에 다 경비내역 정리된것 아닌가요? 현장경비는 어떤건지 궁금합니다. 내용 잘 아시는 분 답변 부탁드립니다.
- 토목공학학문Q. 공사 견적서 경비 중 보험료(산재/고용/건강)는 누가 부담해야하는건가요?공사 견적서를 받아보았는데요.내역 중 보험료가 경비로 포함돼 있네요.이걸 건축주가 부담하는게 맞나요?언뜻드는 생각엔 업체가 부담하는게 맞을 것 같은데요.내용 잘 아시는분 관련해서 설명 좀 부탁드립니다.