아하
  • 홈

  • 토픽

  • 스파링

  • 잉크

  • 미션


  • 전문가 신청

  • 베리몰

학문

토목공학

퍼플펭귄

퍼플펭귄

25.08.22

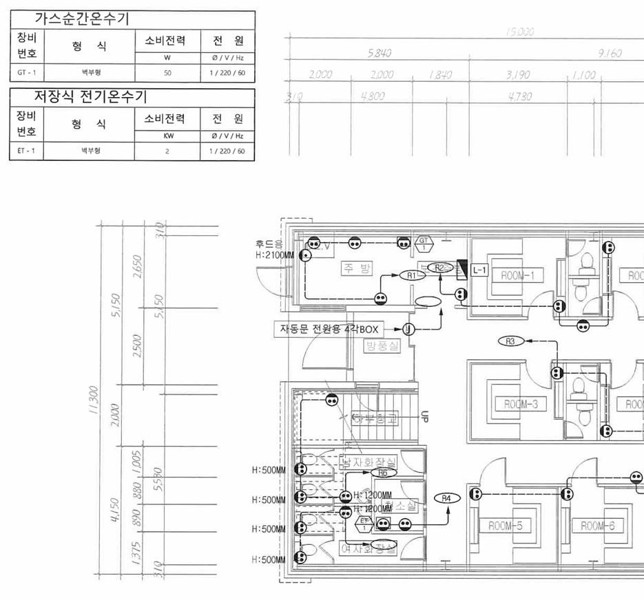
건축설계도면 중 전열설계도인데 어떻게 해석하면 되나요?

설계사무실에서 설계도를 받았습니다.

전열설비 평면도가 있던데요.

돼지코(구멍2개 가진 원형)같이 생긴 심볼을 전기 콘센트자리인가요?

도면 해석 좀 부탁드립니다! 전열설비 평면도 일부를 첨부드립니다.

아직 답변이 없어요.

축구 금지한 초등학교들
당신의 생각은

3,283명 투표 중

축구 금지한 초등학교들 당신의 생각은

1일 4 : 40 : 33 남음

참여하기

전문가들의 생각, 잉크

  • 법률

    작업대출을 받으려다가 보이스피싱 사건으로 경찰조사를 받게 되었습니다. 처벌될 수 있나요?

    최염 변호사 프로필 사진

    최염 변호사

    0

    0

    1,398

    작업대출을 받으려다가 보이스피싱 사건으로 경찰조사를 받게 되었습니다. 처벌될 수 있나요?

  • 심리상담

    “왜 가족인데 이렇게 힘들까요”

    푸른마음심리상담센터 프로필 사진

    푸른마음심리상담센터

    1

    0

    1,318

    “왜 가족인데 이렇게 힘들까요”

  • 심리상담

    “나는 결국 안 바뀌는 사람인가”

    푸른마음심리상담센터 프로필 사진

    푸른마음심리상담센터

    1

    0

    1,276

    “나는 결국 안 바뀌는 사람인가”

유사한 질문이 있어요.

  • cad 전기, 소방 도면 작성해야하는데 건축도면 레이어 설정 궁금해요

  • 전기판넬 내부 발열량에 따른 팬 설치 계산방법

  • 설계도서란 뭐가 있는지 알고싶어요

  • 실링팬과 조명등의 위치선정이 궁금합니다.

  • 개인정보처리방침

  • 이용약관

  • 서비스 소개

  • 커뮤니티 보상 시스템 소개

  • 광고 문의